André Le Nôtre in perspectiveClosed12y 30w 04d 20h 45m 52s
12y 30w 04d 20h 45m 52s
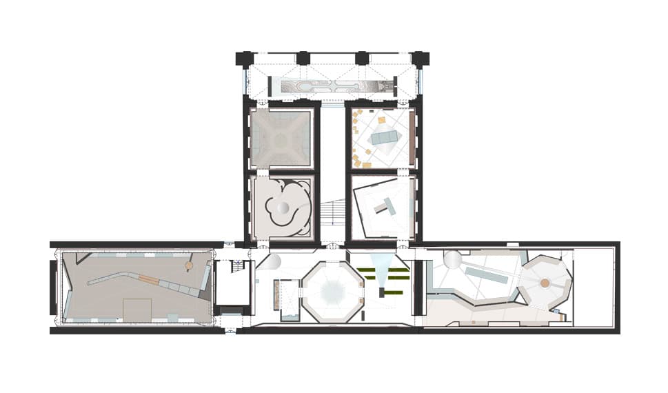
10.2013temporary exhibitionArea : 1500 M²

1/9
The Palace of Versailles,, France
Owner
The Palace of Versailles
Collaboration
Anamorphée (graphic design)
Photos credits
© Yann Bohac

2/9

3/9

5/9

4/9

6/9

7/9

8/9

9/9