Noëlla PontoisClosed13y 15w 04d 12h 59m 38s
13y 15w 04d 12h 59m 38s
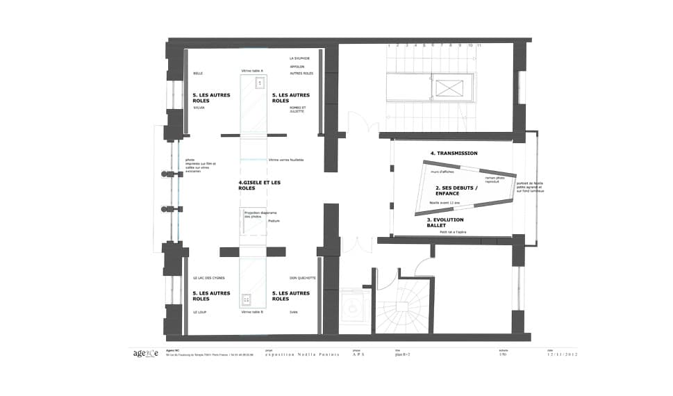
02.2013temporary exhibitionArea : 380 M²

1/11
Elephant Paname,Paris, France
Owner
Elephant Paname
Collaboration
Anamorphée (graphic design)

2/11

3/11

5/11

4/11

7/11

6/11

8/11

9/11

11/11
10/11