Journées Particulières DiorExposition terminée12a 49s 02j 21h 13m 06s
12a 49s 02j 21h 13m 06s
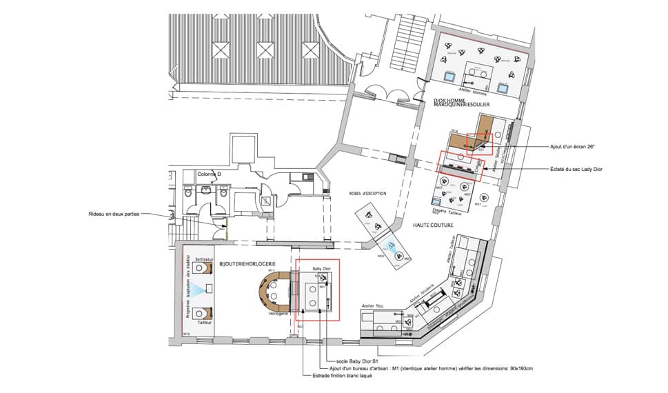
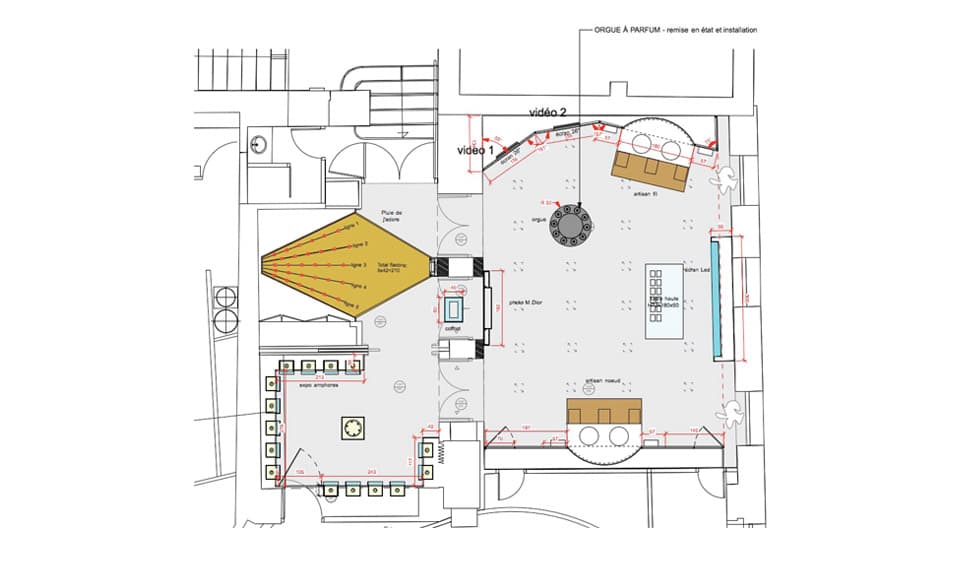
06.2013exposition temporaire, évenementielSurface : 300 M²

1/9
Boutique Dior Avenue Montaigne,Paris, France
Maitre d'ouvrage
Christian Dior Couture
Collaboration
Anamorphée (graphisme)

3/9

2/9

5/9

4/9

7/9

6/9

9/9

8/9