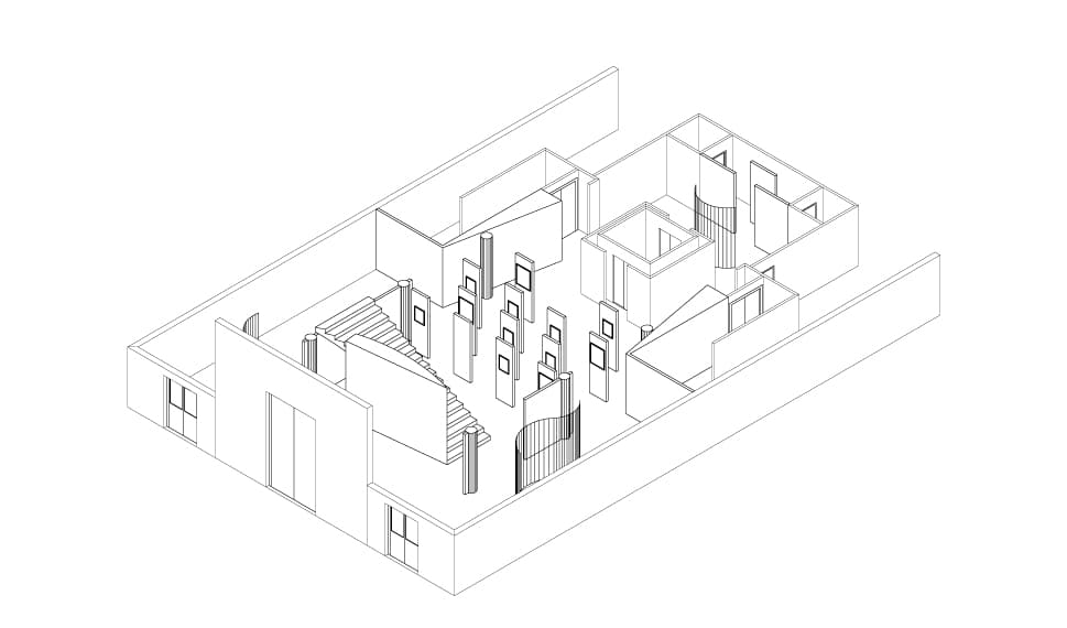
Fictions IntimesExposition terminée27a 30s 02j 10h 46m 58s
27a 30s 02j 10h 46m 58s
11.1998exposition temporaireSurface : 600 M²

1/5
Espace Electra,Paris, France
Maitre d'ouvrage
Le Centre Pompidou, Centre National d'Art et de Culture
Liens

3/5

2/5

5/5
4/5