OuLiPo, la littérature en jeu(x)Exposition terminée11a 19s 04j 16h 09m 49s
11a 19s 04j 16h 09m 49s
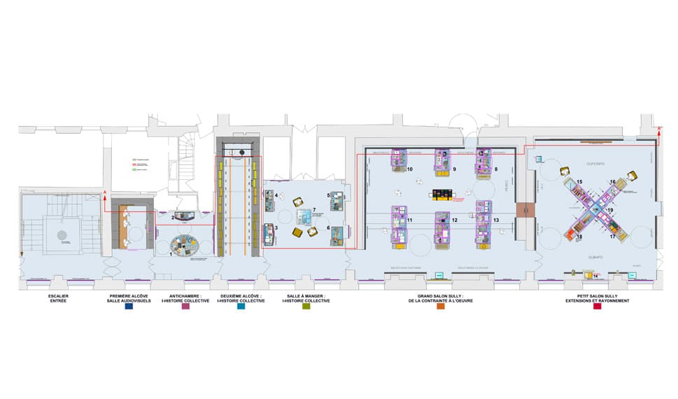
11.2014exposition temporaireSurface : 300 M²

1/7
Bibliothèque de l’Arsenal,Paris, France
Maitre d'ouvrage
Bibliothèque nationale de France
Collaboration
c-album (graphisme)

3/7

2/7

5/7

4/7

6/7

7/7