Philanthro-LabExposition terminée04a 31s 06j 11h 37m 21s
04a 31s 06j 11h 37m 21s
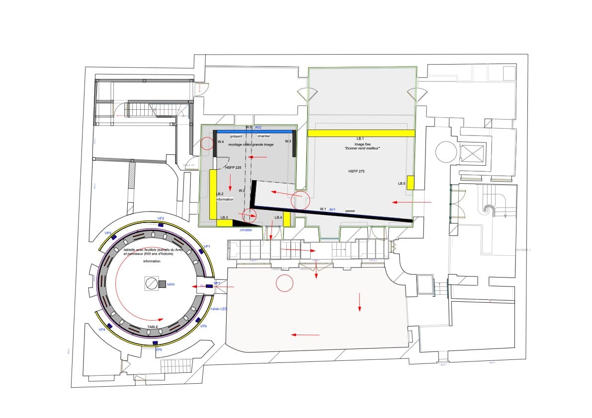
09.2021exposition temporaireSurface : 200 M²

1/9
15 rue de la Bûcherie,Paris, France
Collaboration
c-album (graphisme), Gelatic (éclairage)
Maitrise d'ouvrage
Compagnie de Phalsbourg

2/9

3/9

5/9

4/9

7/9
6/9

8/9
9/9