Red Sea MuseumPermanent18s 05j 21h 28m 01s
18s 05j 21h 28m 01s
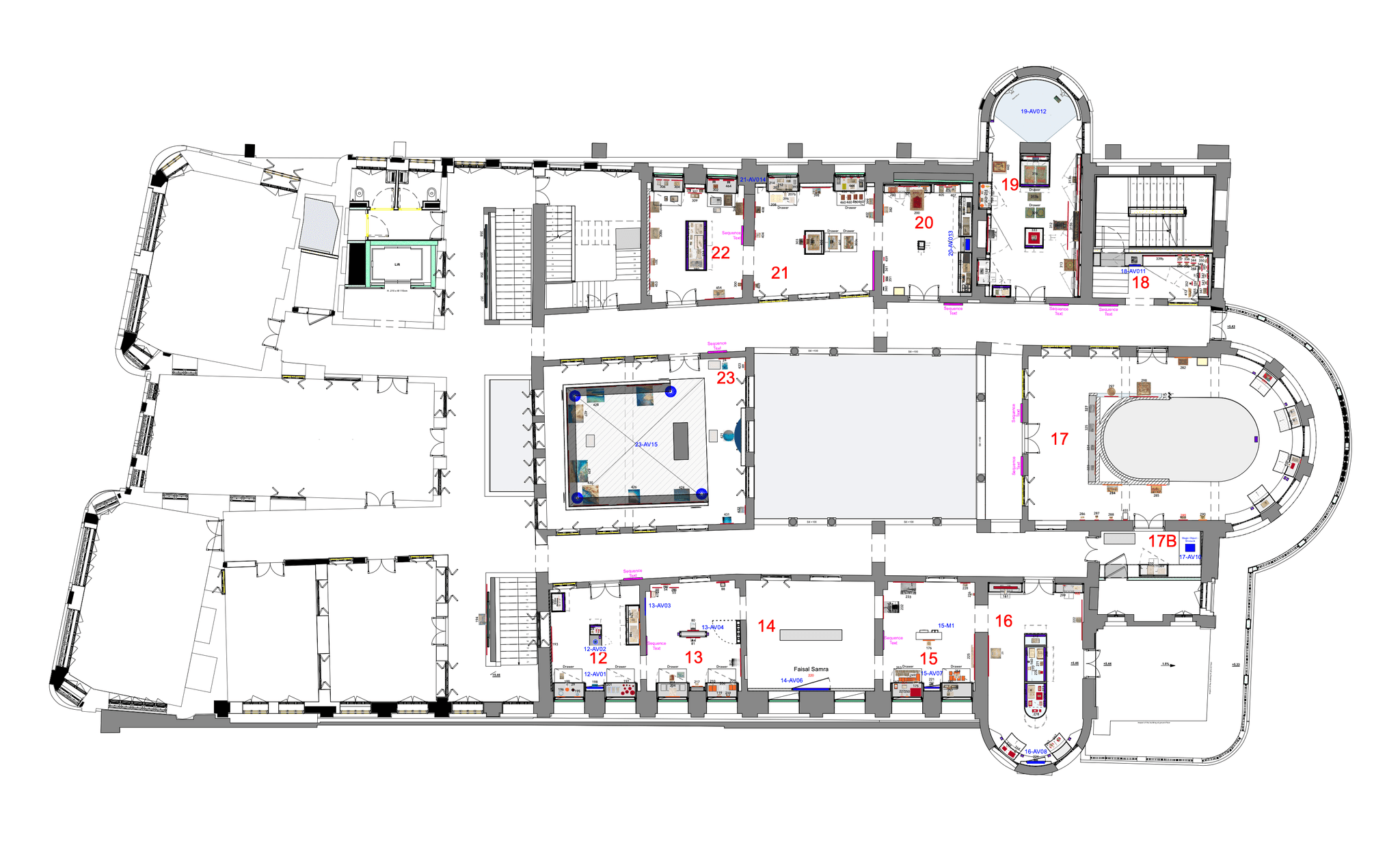
12.2025exposition permanenteSurface : 1000 M²

1/10
Red Sea Museum,Jeddah, Arabie Saoudite
Collaboration
Tiphaine Massari (graphisme), LightEmotion (éclairage) Levant (Audiovisuel)
Maitrise d'ouvrage
Ministère de la Culture

2/10

3/10

5/10

4/10

6/10

8/10

7/10

9/10

10/10