La Villa du temps retrouvé : Parcours Belle ÉpoquePermanent27a 28s 02j 18h 34m 51s
27a 28s 02j 18h 34m 51s
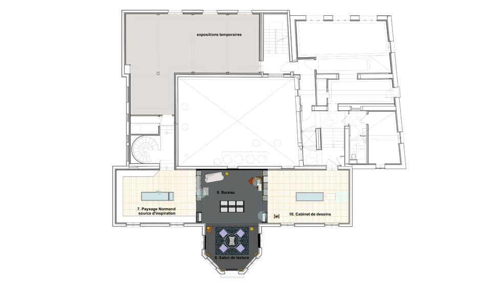
06.2021exposition permanenteSurface : 700 M²

1/13
La Villa du temps retrouvé,Cabourg, France
Maitre d'ouvrage
Mairie de Cabourg
Collaboration
c-album (graphisme), ACL (éclairage), La Méduse (audiovisuel)
Crédit photos
© Nicolas Trouillard

2/13

3/13

5/13

4/13

6/13

7/13

9/13

8/13

11/13

10/13

13/13

12/13